A sunken garden for seating and entertaining
A sunken garden for seating and entertaining, occupying a space previous housing an outdoor swimming pool
- Budget35K
- Date2022
- LocationNewark, Nottinghamshire






Enjoy your garden more with our professional fixed-fee garden design solutions for customers in Grantham, Stamford, Newark and surrounding areas.


Are you are looking for a trusted and local garden designer to help you with your garden project?
Tythorne Garden Design is an established and respected garden design practice in the East Midlands. Providing professional fixed-price garden design, planting design and garden lighting design, we can help you make the most of your outdoor space and create the garden you have always wanted.
We think local knowledge is crucial to successful garden design, so we purposely choose to only accept projects within an hour of our South Lincolnshire HQ. This makes us ideally located to offer garden design services to customers in Grantham, Stamford, Newark and the surrounding areas.
Our principal designer, Ian McBain, is a Registered Member of the Society of Garden Designers and Tythorne Garden Design is an accredited garden design practice with the Association of Professional Landscapers.
Ready to enjoy your garden more? Get in touch today to see how we can help you enjoy your garden more. You can reach us on 07900 224 239, 01529 455 355 or by email at [email protected].
A sunken garden for seating and entertaining, occupying a space previous housing an outdoor swimming pool





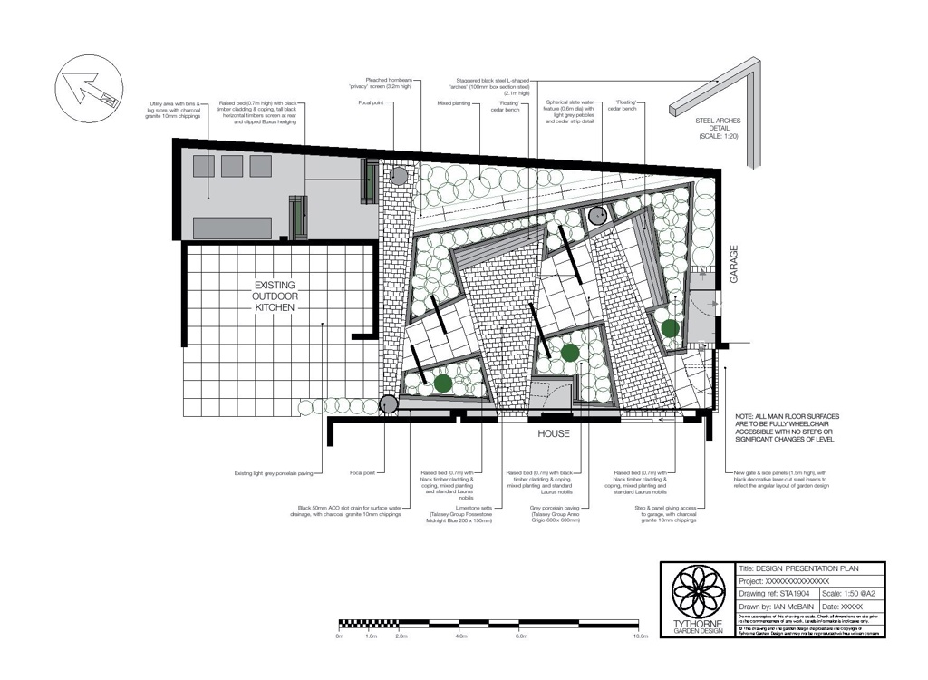
A contemporary 'courtyard' garden, designed to provide wheelchair accessibility and be a destination space for the whole family to enjoy.





A contemporary garden with two seating & entertaining areas, a low-maintenance water feature and subtle garden lighting





A large rural garden with two new ponds and extensive soft-landscaping





Tythorne Garden Design Limited
Tythorne Lodge
Oasby
Grantham
Lincolnshire
NG32 3NA