
A contemporary courtyard garden with wheelchair accessibility (1)
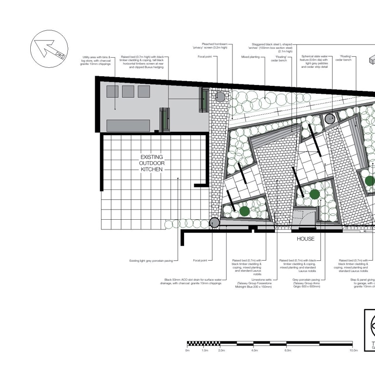
The design presentation plan for the new garden


Our clients were very clear that the new garden should feel like an important destination space, with a definite and unique identity. It needed to provide a contemporary link to the wider rear garden and provide wheelchair-friendly access to the driveway, but it predominantly needed to feel like “somewhere the family will want to go to spend time together”.
Our starting point for the new design was to create a collection of angular raised planting beds, carefully positioned to form four key views and four ‘paths’. The first view sees a stone sett path lead from wide glass doors towards a carefully chosen layered slate water feature. The second begins at the property’s side door, where another stone sett path widens as it heads towards one of the garden’s two ‘floating’ cedar benches.
Providing immediate structural interest and a dynamic sense of energy, the angular raised beds also serve to lift the planting to a comfortable and enjoyable height. Additional internal height and interest is provided via four L-shaped ‘arches’. Constructed from 100mm box-section steel, these arches are positioned in a staggered formation to frame the view by drawing the eye through the garden.
The planting in the raised beds is primarily designed with late spring and summer in mind. Aimed at providing fragrance, texture, colour and movement, the planting scheme predominantly features a blend of perennials, enhanced with a selection of low-maintenance ornamental grasses and shrubs.
Enjoy your garden more with our professional fixed-fee garden design solutions for customers in Grantham, Stamford, Newark and surrounding areas.